ELLE Residences Miami Floor Plans
Explore all available floor plans at ELLE Residences Miami. View layouts, sizes, and download PDFs.
Browse by Bedroom
All Floor Plans

UNE 01
Residence 01
Bedrooms: 1
Bathrooms: 1
Interior: 610 SF (57 m2)
| Floors | Terrace | Total |
|---|---|---|
| 5th, 6th & 25th Floors | 415 SF (38 m2) | 1025 SF |
| 7th-24th Floors | 360 SF (33 m2) | 970 SF |

UNE 03
Residence 03
Bedrooms: 1
Bathrooms: 1
Interior: 540 SF (50 m2)
| Floors | Terrace | Total |
|---|---|---|
| 5th, 6th & 25th Floors | 125 SF (12 m2) | 665 SF |
| 7th-24th Floors | 127 SF (12 m2) | 667 SF |

UNE 04
Residence 04
Bedrooms: 1
Bathrooms: 1
Interior: 540 SF (50 m2)
| Floors | Terrace | Total |
|---|---|---|
| 5th, 6th & 25th Floors | 125 SF (12 m2) | 665 SF |
| 7th-24th Floors | 127 SF (12 m2) | 667 SF |

UNE 05
Residence 05
Bedrooms: 1
Bathrooms: 1
Interior: 540 SF (50 m2)
| Floors | Terrace | Total |
|---|---|---|
| 5th, 6th & 25th Floors | 135 SF (13 m2) | 675 SF |
| 7th-24th Floors | 157 SF (15 m2) | 697 SF |

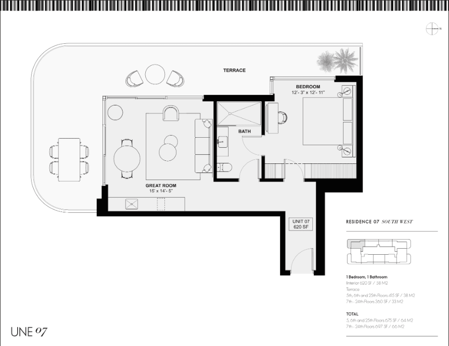
UNE 07
Residence 07
Bedrooms: 1
Bathrooms: 1
Interior: 620 SF (58 m2)
| Floors | Terrace | Total |
|---|---|---|
| 5th, 6th & 25th Floors | 415 SF (38 m2) | 1035 SF |
| 7th-24th Floors | 360 SF (33 m2) | 980 SF |
UNE 07 PDF totals appear inconsistent vs interior+terrace; keep both source totals and computed totals.

UNE 08
Residence 08
Bedrooms: 1
Bathrooms: 1
Interior: 450 SF (42 m2)
| Floors | Terrace | Total |
|---|---|---|
| 5th, 6th & 25th Floors | 160 SF (15 m2) | 610 SF |
| 7th-24th Floors | 170 SF (16 m2) | 620 SF |

UNE 09
Residence 09
Bedrooms: 1
Bathrooms: 1
Interior: 450 SF (42 m2)
| Floors | Terrace | Total |
|---|---|---|
| 5th, 6th & 25th Floors | 160 SF (15 m2) | 610 SF |
| 7th-24th Floors | 170 SF (16 m2) | 620 SF |

DEUX 02
Residence 02
Bedrooms: 2
Bathrooms: 2
Interior: 825 SF (77 m2)
| Floors | Terrace | Total |
|---|---|---|
| 5th, 6th & 25th Floors | 355 SF (33 m2) | 1180 SF |
| 7th-24th Floors | 320 SF (30 m2) | 1145 SF |

DEUX 06
Residence 06
Bedrooms: 2
Bathrooms: 2
Interior: 855 SF (80 m2)
| Floors | Terrace | Total |
|---|---|---|
| 5th, 6th & 25th Floors | 365 SF (34 m2) | 1220 SF |
| 7th-24th Floors | 305 SF (28 m2) | 1160 SF |